
The 6m Cabin: Your Versatile Commercial Space Solution
Adaptable, Efficient, and Ready for Business
Introducing The Studio, Dwellr's premier towable cabin solution designed with commercial needs in mind. From short-term festival accommodations to long-term student housing, and even as on-site production units, The Studio offers unmatched versatility and efficiency to support your operational objectives.
Commercial-Grade Features
-
Easily relocatable, The Studio is ideal for varying site needs, offering the ultimate in logistical convenience for businesses.
-
Outfitted to serve an array of commercial applications, from providing a restful retreat for event staff to functional living spaces for educational campuses.
-
Equipped with an eco-friendly 2.5 kW air-conditioning system to ensure a comfortable environment that's both efficient and cost-effective.
-
Designed for quick deployment, The Studio can be seamlessly integrated into your existing operations, minimising downtime and maximising utility.
Tailored to Your Needs
-
With an open-plan design, adapt The Studio to fit your specific use-case—be it accommodation, office space, or specialty use.
-
Choose from base to fully furnished options, including all necessary amenities—from kitchen essentials to bathroom linens and high-quality Australian toiletries, ensuring a ready-to-use solution upon delivery.
-
Features like commercial-grade vinyl flooring and COLORBOND insulated paneling are selected for their durability and ease of maintenance, ideal for high-traffic commercial use.
Operational Benefits
-
Our streamlined process ensures The Studio can be delivered and set up quickly, keeping pace with the dynamic needs of your business.
-
With competitive pricing and the option to customise based on your budget and requirements, The Studio represents an efficient use of resources.
-
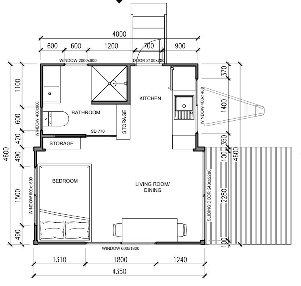
• Bathroom with vanity, shower and toilet suite
• Sliding door entrance with security screen and large windows fitted with fly screens
• Complete electrical wiring for connection to 15 amp lead including light fixtures, 4 x double GPs and smoke detector
• Kitchenette with storage
• Deck and staircase with handrail
• Air conditioner 2.6kW cooling 2.5kW spilit system reverse cycle unit
• Walls 50mm, roof 100mm XPS trimdek insulated panel 0.6 mm metal skin
• Plumbing including instantaneous 16litre gas hot water system
• 4.2m trailer -
Length of house: 4.2m
Towing length: 6m
Length including deck: 6.4m
Width: 4.6m
Weight (approx): 3500kg
Height: 3.45m -
• Turnkey packages. Choose from base to fully furnished options, including all necessary amenities—from kitchen essentials to bathroom linens and high-quality Australian toiletries, ensuring a ready-to-use solution upon delivery.
• Off-grid solutions: Including gas appliances, solar panels, eco toilet and water management systems.
Explore the Turnkey Solutions
-
Classic Package
Our Basic turnkey option offers a practical and comfortable living solution for students and workers. Featuring essential furnishings, efficient storage and appliances. Designed for ease of living and study.
-
Upgraded Package
Elevate the guest experience with our premium turnkey option, which includes luxurious finishes, upscale appliances, and thoughtful amenities. All designed to provide tourists with a memorable and comfortable stay in a home away from home.
Whether expanding campus facilities, enhancing guest experiences, or supporting on-site operations, The Studio cabin is your solution to adding value and flexibility to your commercial offerings.






Connect With Us
Let’s discuss how The Studio can be customized to fit your commercial rental needs. Contact us for a detailed consultation and start optimizing your space today.